top of page
Preserve House
This beautiful house by a Nature Preserve is home to a young family that was in desperate need of more space. Their wish list included the following items:
-
A more spacious Entry to the Home
-
New First Floor Den/ Office
-
New Second Floor Primary Suite
-
New Garage
-
Overall improved appearance of the home
Jondal Design has worked with the Owners to tailor a design solution for an expansion to their home that addresses all their functional needs, while greatly improving the flow of interior spaces, and creating a harmonious new exterior to the home.
The transformation of the house was completed in the fall of 2025.

BEFORE TRANSFORMATION

AFTER TRANSFORMATION

BEFORE TRANSFORMATION

AFTER TRANSFORMATION
.jpg)
FIRST FLOOR PLAN - BEFORE
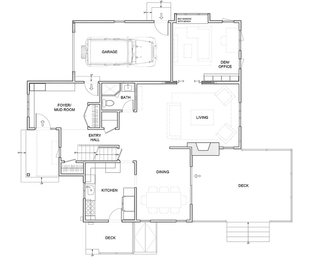
FIRST FLOOR PLAN
.jpg)
FIRST FLOOR PLAN - AFTER
.jpg)
SECOND FLOOR PLAN - BEFORE
.jpg)
SECOND FLOOR PLAN - AFTER
bottom of page